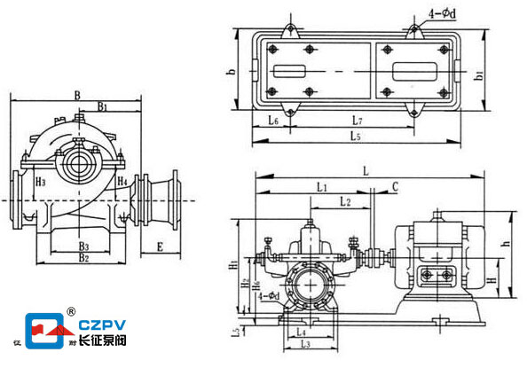
雙吸離心泵的結構有泵體、葉輪、軸承、軸、底座等主要配件構成。下面講解雙吸離心泵結構圖裝配。
雙吸離心泵結構圖
從雙吸離心泵結構圖可以看出雙吸泵的結構比較復雜有許多配件構成,分別是:
泵體
單級雙吸離心泵可以根據受力情況使用雙蝸殼型減少徑向力,泵體與電機進出管路的相對位置可以根據用戶場地進行改變。泵體是由兩部分構成,分別是吸水室與壓水室。吸水室的進口與壓水室的出口分別是雙吸泵的進口法蘭與出口法蘭。
葉輪
單級雙吸離心泵葉輪使用雙吸葉輪確保軸向力減到很小,葉輪用CAD優化設計的優異水力模型,使設計出的雙吸泵葉輪可以適應不同的工況要求。
軸承
軸承使用的是滾動軸承,維護便捷使用壽命長,尾部軸承使用軸承襯套。
軸
軸經過加粗后剛性好,全部密封的軸可以不接觸液體,不會腐蝕螺紋。
底座
底座可以根據用戶需要裝配焊接鋼底座,具有韌性好、耐沖擊等優點,輕便耐用耐沖擊。
雙吸離心泵裝配
裝配工藝步驟
①軸鍵→②葉輪→③卡環→④定位環→⑤密封環→⑥機械密封軸套→⑦機械密封→⑧密封壓蓋→⑨擋水圈→⑩軸承套筒→?軸承體→?卡環→?鍵→?聯軸器→?葉輪軸入機座→?兩端軸座→?上蓋→?聯軸器保護殼→?控制油管
1.轉子部件裝配:把葉輪、軸套、軸套螺母、填料套、填料環、填料壓蓋、擋水圈、軸承部件依次裝配在泵軸上,并且把雙吸密封環套上,接著將聯軸器裝上。
2.把轉子部件裝配在泵體上,葉輪的軸向位置調整到兩側雙吸密封環的中間進行固定,把軸承壓蓋連同固定螺栓緊固。
3.填料裝上,將雙吸離心泵紙墊放好,蓋上泵蓋打緊尾部柱銷后,泵蓋螺母擰緊,接著把填料壓蓋裝上。但是不要把填料壓得過緊,填料過緊會導致軸套發熱,功率耗費較大,注意不要壓的過松,太松會導致液體滲漏大,雙吸離心泵效率會降低。
4.查看單級雙吸泵泵轉速與電機應該沒有損壞。
5.雙吸離心泵的安裝高度,需要加上吸入管路的水力損失,使速度能不能高于單級雙吸離心泵產品樣冊固定的允許吸上真空高度值。基礎尺寸應該符合雙吸離心泵的安裝尺寸。
雙吸離心泵結構圖裝配由離心泵廠家總結。推薦閱讀:雙吸離心泵結構說明及結構圖


FSB型氟塑料合金離心泵
CZW型臥式管道增壓離心泵
czl系列單級單吸立式管道離心泵
